お知らせ
-
2021.02.20.
成約速報 物件情報
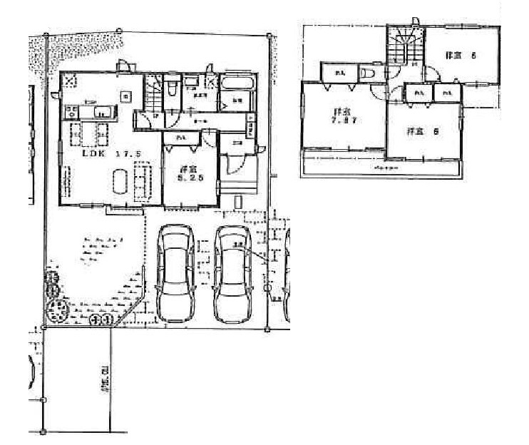
ご成約御礼 八王子市犬目町の新築一戸建て
下記物件、ご成約いただきました!!
ありがとうございました!!
・八王子市犬目町の新築一戸建て
R3年5月完成予定・土地面積155.00㎡・建物面積100.40㎡・木造2階建・4LDK

買いたい!売りたい!そのご希望精一杯かなえます!
センチュリー21住宅工営販売
不動産流通事業部2課 マネージャー 渡辺大樹
フリーダイヤル:0120-339-021
メールでのお問い合わせは:watanabe@c21jk.com