お知らせ
-
2024.11.08.
物件情報
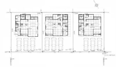
新規公開情報 相模原市緑区下九沢の新築一戸建て・全3棟
新登場!弊社で新たにお預かりしました!!
新規公開情報
相模原市緑区下九沢の新築一戸建て・全3棟 4,690万円
画像をクリックしていただくか、下記URLより詳細ページをご覧いただけます。
物件詳細ページはこちらから
↓ ↓ ↓
https://www.hachioji-shinchiku.com/s_r_391330/
ご質問などお気軽にお問い合わせください。
オンラインでのご相談も好評受付中です。
オンライン相談ではスタッフが操作するパソコン画面をそのままお手持ちのPCやタブレット端末、スマホ画面に投影することが可能、物件情報をご覧いただくことはもちろん、様々なご相談もリアルタイムに行うことができます。
お問い合わせは
センチュリー21ココカラ
不動産流通事業部1課 上原祐史
フリーダイヤル:0120-339-021
メールでのお問い合わせは:uehara@c21jk.com


